1st Reading Sea Scouts
Boathouse News
Boathouse Report September 2006
We lost EVERYTHING in the fire, except our defaced Red Ensign which was in the YMCA. To the casual onlooker little appears to have happened on the boathouse site since this dreadful picture appeared in the Evening Post. Behind the scenes however it is a very different story.

The site is a very difficult one. The ground is mostly compacted river mud 10 feet below road and drain level and is liable to flooding. We now have to comply with regulations for disability access, and building control standards etc that did not exist in the 1950's when the old wooden hut was built. We are also building in a floodplain. In addition, access to the site is poor as the road outside is narrow and tree lined. Had we been able to build a simple wooden hut on solid ground well above river level, then by now we would already have built a new boathouse. The Leaders, besides having to run the various Explorer, Scout, Cub, and Beaver meetings and camps etc whilst having full time jobs to contend with, now, together with the Executive, had to contend with the problems caused by the fire and loss of boating facilities and examine how we could get a new boathouse. In spite of all the difficulties we have achieved a lot as this report shows.

Clearance of the fire debris by road was impossibly expensive as we were not allowed to station large containers on the road outside, but they would have to be located about 400 yards away. We would have had to carry all the debris up the steps and then wheelbarrow it away. So we did it by water. Barges were loaded by crane on site then off loaded into grab lorries at Caversham Wharf down river. The contractor felled 3 large trees and removed over 100 tons of debris!
Then came some good news!
The Royal Navy granted us £3000 to buy 2 Duchess dinghies, although we had to spend a further £600 to have them modified to our requirements.
The first was presented at our Annual RN Inspection which we passed with flying colours.
Immediately after the fire a vast amount of planning took place, and discussion meetings commenced.
How could we arrange boating activities without a boathouse?
How could we build and pay for a new boathouse? How much
would it cost?
What was the cost of all the tents and boats we had lost?
How much insurance could we get and would they pay?
How could we raise the money? What fund raising could we do?
Could we borrow equipment from other Groups?
What about summer camps?
Vic Hills from Reading YMCA started discussions with Reading Borough Council to see
if we could use the next-door Warren Canoe Club in some way.
He also commenced the paperwork required for the Insurance claim.
Mike, and the other leaders started to prepare list of equipment, boats and costs.
A fund raising team was formed.
Our many friends heard of our plight through TV the Press,
and donations came in from a number of sources, but more about funds later.
The Boathouse subcommittee met and with the Executives blessing engaged an Architect,
and drew up an Architects brief.
These few lines of print don't look much but represent hours of work.
So where are we today?
Boathouse design by Chris Owens MA (Cantab) Dip Arch RIBA


Full planning permission was granted on 28 Nov 2005.
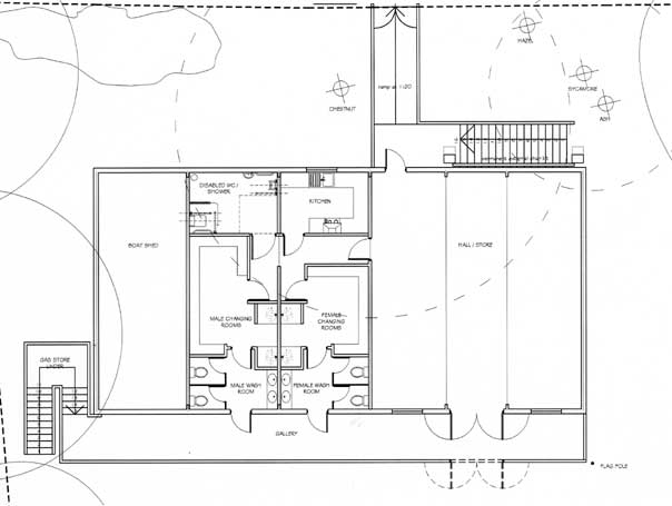
The Site.
The site covers approximately 0.08 ha and is approximately 3.24 metres below road level in the Thames flood plain. A dwarf retaining wall must be built to stabilise the earth bank between the building and the road, and this bank and the grounds must be landscaped to the approval of the local authority. The new building will be approximately 10m x 19 m and will stand on eighteen 3 metre high pillars supported by 18 double piles driven 10 metres into the soft ground of the floodplain. A security fence must be erected on at least 2 sides of the site, part of the riverbank needs campshedding, one large tree must be felled and others trimmed on both sides of the site.
First floor (3 metre)level of Building,
This contains,male and female toilets, changing rooms, showers, a disabled changing room with toilet, shower, a small kitchen, a meeting room approx 8 m x 10 m. and a tent store.
Undercroft (ground) level of Building.
By demand of the Environment Agency and the Planning Authority this must be left open and free flooding, however we are allowed a free flooding boat/canoe store having hit and miss vertical wooden plank sides with the boats floating upwards in times of flood. There will be an open assembly area under the building and the remainder of the site will be grass.
Access to Building and Ground Level
Access to the building will be by a slight ramp from road to first floor level. Steps with a permanent external chair lift will give disabled access from first floor to ground level. A flagpole will be on the front corner of the building. A gallery with steps from ground level runs across the front of the building for riverside access to the changing and meeting rooms.
(Ramps from road to ground level for disabled access were originally considered but were found to occupy a very large ground area. They have been replaced by the chair lift.)
Construction Feasibility
The architect, in conjunction with a Quantity Surveyor has now completed a Construction Feasibility Report. This report, which was delivered in August 2006, has examined 4 different construction methods and calculated Budget Costs for: -
A Traditional Build Method
A building based upon a Timber Framed Shed
A building erected from preformed panels constructed off site.
A Modular building.
The architect has concluded that the simplest and cheapest way of procuring the building is likely to be a relatively conventional method using traditional construction. The architect has also examined the building time scale of each building method, all of which will be around 18 months overall as we would be unwise to undertake piling during the winter months due to the risk of flooding, and the very large penalty costs that would be incurred if work had to be suspended.
The "Way Forward" is now under discussion. Whichever method is adopted the work will be put out to competitive tender, as was the clearance of the fire damage.
VAT Relief.
Very considerable VAT costs will be incurred unless the building can be zero rated for VAT.
But the Scout Association has informed us that HM Revenue Customs has agreed that Scout Huts that are "similar" to Village Halls (which are already zero rated), may also be zero rated. The similarity affects the use of the building and has implications upon our lease. We are endeavouring to contact another Scout (or Guide) unit that has been down this route to see if they can give us any pointers.
Ground Lease.
The land is leased from Reading Borough Council, and there are only a few years left on the current lease. It is likely however that we shall be granted a new lease with security of tenure. There are however at least two conditions in our current lease that will prevent us from becoming "similar" to a Village Hall, and we may also have to rename our boathouse as a "Scout Hut" which may have implications on our Planning Approval. These questions remain to be resolved, but clearly there is much discussion to follow. We are in any case responsible for paying the legal costs of both Reading YMCA and Reading Council for the new lease!
Funding.
It is obvious that this new build will involve seriously large costs, and the next question is how they will be funded. In early 2003 we examined the possibility of obtaining a major grant from the Lottery Community Fund and it became apparent that we did not qualify.
Early in 2006 we attended a presentation on the new Big Lottery Fund. When the presenter categorically stated "We will NOT fund Scout Huts" we left!
Reading YMCA are examining whether they can apply for funding against the much wider remit of YMCA Children's and Young Peoples Work, but we may be clutching at straws.
In January 2004 we had a 50-year-old wooden hut in a poor state of repair, 4 duchess dinghies and 30 or so old canoes, a design for a new building that we could not build, and about £10,000 in the boathouse fund.
In January 2005 we had no boats, a burnt out pile of rubbish on a site that resembled a bombsite, and £10,000 or so in the fund.
In September 2006 we have 2 brand new Duchess dinghies, twenty or so canoes, a design for a new building that has received Planning Approval and we will have about £200,000 towards the rebuilding when the balance of the Insurance money comes in. So how did we get there.
Donations and Fundraising
(The following figures are only approximate as they are constantly changing)
Since January 2005 we have received a very substantial donation from Harry Beckett, and substantial donations from 3 other persons, plus a number of smaller donations. These total £65,400. In addition Group Fundraising by various sections and persons in the Group have raised another 315,600. We have used some of this money to pay for
Site clearance £12.000
Planning Application £1,000
Architect etc £6,000
The Building Insurance will only make payments against actual rebuilding costs, so these sums have now been claimed back as stage payments. We have also claimed approx £28,000 in respect of the destroyed building contents and boats etc. All the monies claimed back, together with the balance of the Donation and Fundraising money have now been deposited in a Charities Aid Foundation Gold Account run by the YMCA, and are earning interest. Money can only be withdrawn with the agreement of the YMCA Trustees and will remain there until we commence rebuilding. There is a further approximate £90,000 still to be clamed back from the Insurance Company as further stage payments are made.
Rebuilding Cost
The Architect and Quantity Surveyor have calculated that the budget cost for re-building will be between £350,000 and £400,000, and VAT will account for about £50,000 of this. It is vital therefore that we get the zero rating if we can. The very high cost is due to the piling and foundation work required, approx £70,000, disabled provision (lift, toilet etc) other changing facilities £19,000. In addition we have also to cover the cost of further boats, replacement tentage and other camp equipment, and all the other furnishings and equipment required within the building.
Further Grants
If we are to build a new water activity centre, and we MUST, then we need to raise around a further £200,000. We shall be applying to various grant making bodies, and a document setting out our case (who we are, what we do, how we do it, what we have achieved in the past, and why we should be supported) is in the course of preparation.
Our boating is on the Thames, the Group has worked with the Kennet & Avon Canal Trust over many years, particularly at Reading Water Fest, and is a Royal Navy Recognised Group. To vouch for us, and add their support, we have approached three prominent names all of whom have naval service and connections with us, and have agreed to be our Patrons:
Sir William Benyon: Vice President of the Kennet & Avon Canal Trust and of the Reading YMCA,
Sir Anthony Durrant: President of the River Thames Society,
Admiral Sir William O'Brien: Formerly Commander in Chief Western East Fleet.
We have come a long way in just over 18 months. Not only this, the Group has continued to run albeit with a few difficulties here and there.
We are grateful to Reading Borough Council and the Warren Canoe Club for the use of their equipment and building, but it is only a stopgap and we cannot do our full range of boating without our own boats. Similarly we are grateful for the use of equipment borrowed from other Groups, and to Sir William Benyon for allowing us to store some equipment in one of his estate barns, but again we must get our own storage. We are also grateful to the RBC Planning Staff who listened to our arguments for a new building on stilts, and over-ruled the Environment Agency on this point, and to our architect who has patiently explained points and found ways of overcoming the
difficulties of the site.
We are also particularly grateful to all those who have so willingly and generously made donations to our cause.
In spite of
the difficulties we have held Summer Camps, Beaver Sleep-overs and attended Regattas in both 2005 and 2006, and will do so again next year.
Fund-raising by various sponsored activities will continue, and no doubt there will be many more committee and sub-committee meetings, and discussions with architects and planners.
The Purpose of Scouting (Taken from PORs Chapter 1: Fundamentals of Scouting)
The purpose of Scouting is to promote the development of young people in achieving
their full physical, intellectual, social and spiritual potentials, as responsible citizens
and as members of their local, national and international communities.
The Scout Method
The Scout Method provides an enjoyable and attractive scheme of progressive training, based on the Scout Promise and Law, which is guided by adult leadership. In practice the method is best seen when young people, in partnership with adults are:
1. Enjoying what they are doing.
2. Learning by doing.
3. Participating in varied and progressive activities.
4. Making choices for themselves.
5. Taking responsibility for their own actions.
6. Working in groups.
7. Taking part in activities outdoors.
8. Sharing in prayer and worship.
9. Making and living out their Promise.
As Sea Scouts we cannot achieve our Purpose without a Boathouse.
Our Target
To Open Our New Building in 2008,
the Centenary Year of our Formation
There is still a long way to go and no doubt many problems to overcome, but the wheels are turning and we are making progress even if at times there is little to show. We are determined to get our new building, and confident that we will, since we are already half way towards our financial target.
Mike Wyatt
Chairman New Building Sub-Committee.